Properties for Rent in Gemeente Amsterdam
Browse all available properties for rent.
Showing 12 of ~590 properties
€4,250
Located on Warmondstraat in the Hoofddorppleinbuurt, this 113 m² double ground-floor apartment will be available from April 1, 2026. The property is s…
€2,400
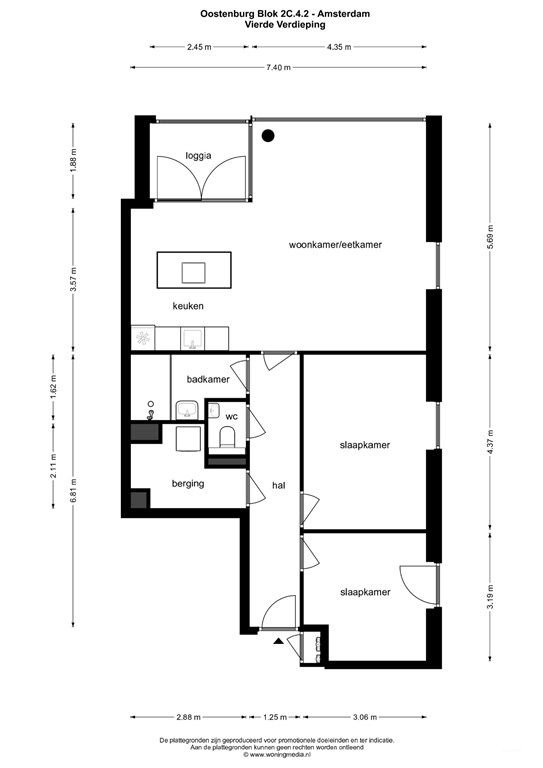
On the second floor of a complex in Amsterdam's Oostenburg, you will find this bright apartment, easily accessible by elevator. You enter through the …
€2,400
On the first floor of a characteristic 1930s building on Zoomstraat, you will find this 72-square-meter apartment. Located in the highly sought-after …
€2,550
This unfurnished 54-square-meter apartment is located directly on Magalhaensplein in Amsterdam West. The property features three rooms, including two …
€3,625
This 98-square-meter apartment is located on Buiten Brouwersstraat, right on the border of the Jordaan and the Haarlemmerbuurt. Here, you live within …
€2,325
This modern 63-square-meter apartment is located on the Buiten Brouwersstraat. You will be living in a strategic location: right on the border of the …

€2,600
This unfurnished 60-square-meter apartment is located directly on the Herenstraat in the heart of Amsterdam. Upon entering, you are welcomed into a br…

€2,400
Located on the third floor of a building dating back to 1887, you will find this furnished 66-square-meter apartment in the Dapperbuurt. You enter a b…

€3,250
On the second floor of a modern complex built in 2019, you will find this lovely apartment in the Houthavens. You enter through the main entrance, whe…

€2,600
This furnished 110-square-meter apartment is located on Dirk Vreekenstraat in the Eastern Docklands. The property is spread over two floors, creating …

€2,900
At Marco Polostraat 84-H in De Baarsjes, you will find this spacious ground-floor apartment of 90 square meters. It is a home where old and new are cl…

€2,600
Located on Ferguutstraat in the Bos en Lommer neighborhood, you will find this fully renovated ground-floor apartment of approximately 71 square meter…















































































































































