Add to favorites
Townhouse on the Vecht with private mooring
Daalseweg 49, Oud-Zuilen, Oud-Zuilen, Utrecht, Netherlands
Monthly Rent
Rental Period
Monthly
Deposit
€7,200
Available From
Immediately
Rental Period
Monthly
Deposit
€7,200
Available From
Immediately
Description
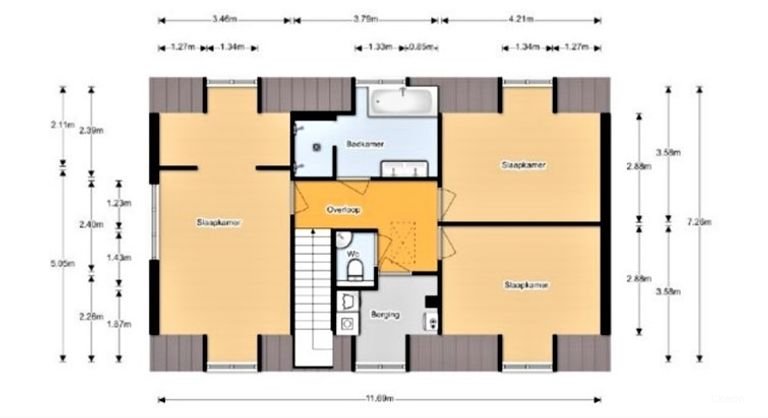
This modern townhouse, built in 2016, is located directly on the river Vecht in Oud-Zuilen, perfectly situated between Maarssen and Utrecht. Here, you live in a lush, park-like setting with the city and major highways within easy reach. The property features a central entrance providing a logical layout. Double French doors lead into the bright living room, where the large bay window is an immediate eye-catcher.
The open-plan kitchen with a large island offers plenty of space for extensive cooking. The kitchen is equipped with modern appliances, including an oven, hob, and a washing machine and…
Details
Rent
€3,600 / month
Type
Townhouse
Location
Amenities & Appliances
Features
Garden
Parking
Storage Room
Appliances
Stove Top
Extractor Hood
Oven
Washing Machine
Dryer



















































