Add to favorites
Spacious living in the heart of Nijmegen
Nieuwe Marktstraat 4, Stadscentrum, Nijmegen, Gelderland, Netherlands
Monthly Rent
Rental Period
Monthly
Available From
3/20/2026
Rental Period
Monthly
Available From
3/20/2026
Energy Performance
Description
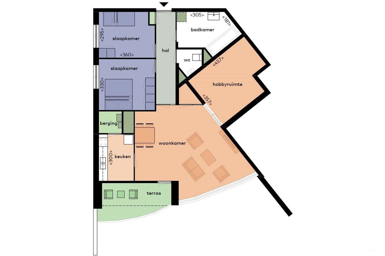
This 96-square-meter apartment is located on the Nieuwe Marktstraat, right in the center of Nijmegen. In the Kronenburger complex, you live in a strategic location: the central station and the green Kronenburgerpark are literally around the corner. This means you have all urban amenities and public transport within easy reach.
Inside, the logical layout is immediately striking. Through the hallway, you reach the separate toilet, the bathroom, and two bedrooms. The living room is spacious and provides access to the kitchen and the terrace, where you can enjoy sitting outdoors. A clever detail is…
Details
Rent
€1,375 / month
Type
Apartment
Total Rooms
3
Bedrooms
2
Size
96 m²
Construction Year
1992
Location
Amenities & Appliances
Features
Bike Storage
Terrace
Parking
Similar Available Properties
€830 / month
€1,650 / month
€1,750 / month

€1,295 / month
€1,950 / month
€823 / month
€946 / month
€1,700 / month
€1,295 / month
€1,710 / month
€1,340 / month
€1,176 / month












































































































































