Add to favorites
Three-story townhouse with terrace and parking
Treurenburgstraat 255, 5613 EA, Villapark, Eindhoven, North Brabant, Netherlands
Monthly Rent
Rental Period
Monthly
Deposit
€3,330
Available From
2/1/2026
Rental Period
Monthly
Deposit
€3,330
Available From
2/1/2026
Description
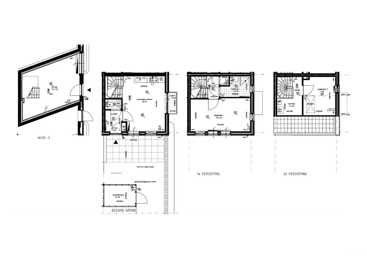
Located at Treurenburgstraat 255, this 101-square-meter townhouse is spread across three floors. You will be living in the PicusKade project, perfectly situated between the NRE site and the DAF Museum. This means the Eindhoven city center is right at your fingertips, while you still enjoy peace and quiet at home. For groceries, a night out, or the train station, everything is just a short walk away.
Inside, you will find two bedrooms and a kitchen fully equipped with built-in appliances, including a dishwasher, refrigerator, hob, and combination oven. The property is delivered with wallpapered …
Details
Rent
€1,665 / month
Type
Townhouse
Total Rooms
3
Bedrooms
2
Size
101 m²
Furnishing
Unfurnished
Construction Year
2019
Location
Amenities & Appliances
Features
Terrace
Parking
Storage Room
Appliances
Fridge
Stove Top
Extractor Hood
Oven
Microwave
Dishwasher







