Toevoegen aan favorieten
Ruim huis (129m²) met tuin in Eindhoven
Santvlietmolen 33, Woenselse Watermolen, Eindhoven, Noord-Brabant, Nederland
Maandelijkse huur
Huurperiode
Maandelijks
Borg
€ 1.665
Beschikbaar vanaf
28-3-2026
Huurperiode
Maandelijks
Borg
€ 1.665
Beschikbaar vanaf
28-3-2026
Energieprestatie
Beschrijving
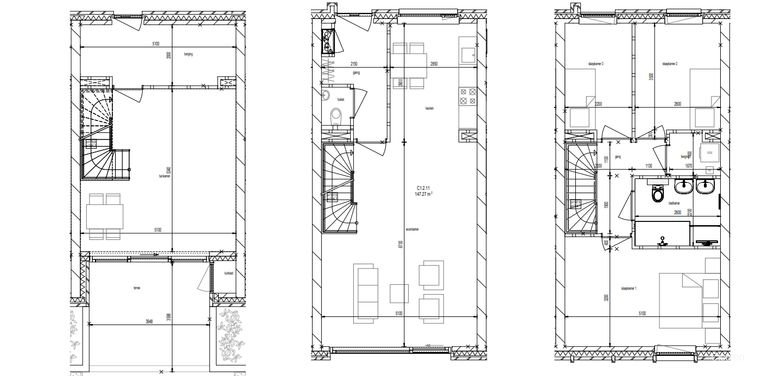
Aan de Santvlietmolen 33 in de wijk Woenselse Watermolen vind je dit huis met een oppervlakte van 129 vierkante meter. Je woont hier in een omgeving met veel groen en speelplekken, terwijl winkels en voorzieningen makkelijk te bereiken zijn. De woonkamer is dankzij de grote raampartijen lekker licht. Aansluitend vind je de open keuken aan de achterzijde. Deze kijkt uit op de tuin en is praktisch ingericht met genoeg werkruimte om fijn te kunnen koken. In de hal heb je bovendien toegang tot een handige berging en het toilet.
Op de eerste verdieping beschik je over drie slaapkamers van een goed f…
Details
Huurprijs
€ 1.665 / maand
Type
Huis
Aantal kamers
4
Slaapkamers
3
Oppervlakte
129 m²
Bouwjaar
1988
Verdieping
Begane grond
Locatie
Voorzieningen & apparatuur
Kenmerken
Tuin
Apparatuur
Kookplaat
Vergelijkbare beschikbare woningen
€ 1.710 / maand

€ 3.000 / maand

€ 1.995 / maand

€ 1.995 / maand
€ 1.775 / maand

€ 1.895 / maand

€ 2.695 / maand
€ 2.453 / maand

€ 2.275 / maand

€ 2.375 / maand
€ 1.850 / maand

€ 2.295 / maand












































































