Toevoegen aan favorieten
Appartement met dakterras in hartje Haarlem
Nieuwstraat 5, 2011 GH, Vijfhoek, Haarlem, Noord-Holland, Nederland
Maandelijkse huur
Huurperiode
Maandelijks
Borg
€ 1.900
Beschikbaar vanaf
Per direct
Huurperiode
Maandelijks
Borg
€ 1.900
Beschikbaar vanaf
Per direct
Energieprestatie
Beschrijving
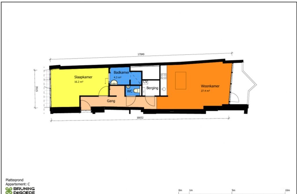
Dit appartement van 58 m² ligt aan de Nieuwstraat in de Vijfhoek, midden in het centrum van Haarlem, en is per direct beschikbaar. Je woont hier tussen de winkels, horeca en alles wat de binnenstad makkelijk maakt, terwijl je thuis juist een fijne plek hebt om je terug te trekken.
De indeling is praktisch en overzichtelijk. Via de hal kom je in de woonkamer, waar je genoeg ruimte hebt voor een zithoek en een eettafel. De keuken is modern en sluit goed aan op de rest van het appartement. Er is 1 slaapkamer, een badkamer en daarnaast nog een apart toilet, wat in het dagelijks gebruik gewoon net w…
Details
Huurprijs
€ 1.900 / maand
Type
Appartement
Aantal kamers
2
Slaapkamers
1
Badkamers
1
Oppervlakte
58 m²
Meubilering
Gedeeltelijk gemeubileerd
Bouwjaar
1910
Locatie
Voorzieningen & apparatuur
Kenmerken
Terras
Vergelijkbare beschikbare woningen
€ 1.900 / maand
€ 4.650 / maand
€ 2.100 / maand
€ 2.750 / maand

€ 1.650 / maand

€ 1.425 / maand
€ 2.450 / maand
€ 3.250 / maand
€ 2.195 / maand
€ 1.299 / maand
€ 3.850 / maand

€ 2.600 / maand


















































































































































































































































