Toevoegen aan favorieten
Modern appartement met binnentuin
Oude Haagweg 489 6, 2552GG, Houtwijk, Loosduinen, Zuid-Holland, Nederland
Maandelijkse huur
Huurperiode
Maandelijks
Borg
€ 2.475
Beschikbaar vanaf
1-1-2026
Huurperiode
Maandelijks
Borg
€ 2.475
Beschikbaar vanaf
1-1-2026
Beschrijving
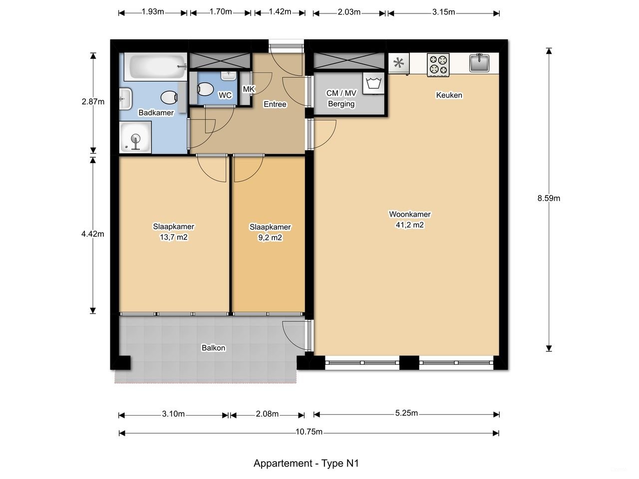
Aan de Oude Haagweg in Loosduinen vind je dit appartement in het complex Harvest. Het gebouw valt op door de grote, gezamenlijke binnentuin waar je als bewoner niet alleen buiten kunt zitten, maar ook gebruik kunt maken van de moestuin. Je komt de woning binnen via een ruime hal die toegang geeft tot alle kamers. Aan de rechterkant zit de badkamer, die is ingericht met zowel een douche als een ligbad, een wastafel en een toilet. Daarnaast is er in de hal nog een apart toilet, wat handig is als je gasten over de vloer hebt.
De woonkamer is met ongeveer 41 vierkante meter flink aan de maat en loo…
Details
Huurprijs
€ 1.650 / maand
Type
Appartement
Locatie
Voorzieningen & apparatuur
Kenmerken
Uitgeruste keuken
Balkon
Parkeerplaats
Berging
Gedeelde faciliteiten
Apparatuur
Oven
Kookplaat




