Toevoegen aan favorieten
Energiezuinige studio in hartje Lisse
Haven 1-3, 2161 KS, Het Vierkant, Lisse, Zuid-Holland, Nederland
Maandelijkse huur
Huurperiode
Maandelijks
Borg
€ 2.228
Beschikbaar vanaf
1-9-2025
Huurperiode
Maandelijks
Borg
€ 2.228
Beschikbaar vanaf
1-9-2025
Beschrijving
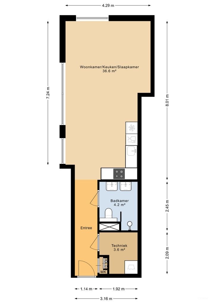
Aan de Haven 1-3 in Lisse ligt deze studio van 49 vierkante meter in het complex De Witte Zwaan. Omdat de woning beschikbaar is vanaf 1 september 2025, heb je ruim de tijd om je verhuizing te plannen. Je woont hier op een centrale plek bij 't Vierkant, met winkels en restaurants direct in de buurt.
De studio is slim ingedeeld en voorzien van vloerverwarming, waardoor je geen last hebt van radiatoren die ruimte innemen. De keuken is volledig afgewerkt, dus je hoeft hier niets meer aan te doen. Het gebouw maakt het je makkelijk met een lift en speciale BringMe pakketkasten, zodat je jouw bestelli…
Details
Huurprijs
€ 1.114 / maand
Type
Studio
Aantal kamers
1
Slaapkamers
1
Badkamers
1
Oppervlakte
49 m²
Meubilering
Gedeeltelijk gemeubileerd
Locatie
Voorzieningen & apparatuur
Kenmerken
Gemeubileerd
Lift
Parkeerplaats
Fietsenstalling
Zonnepanelen




