Huurwoningen in Lisse
Bekijk alle beschikbare woningen te huur.
Toont 3 van 3 woningen
Spankerstraat 14, Lisse Rond3-kamer appartement met 70m² zuidtuin
€ 1.785
Dit goed geïsoleerde appartement uit 2002 ligt aan de Spankerstraat in de rustige wijk Lisse Rond. Met een woonoppervlakte van 78 m² en een energielab…
2
78 m²
Per direct
Appartement
Haven 1A-012, Het VierkantEnergiezuinig appartement aan de Haven
€ 1.296
Aan de Haven 1A-012 in Lisse komt per 1 maart dit appartement vrij. Je woont hier op een centrale locatie vlak bij Het Vierkant, met diverse winkels e…
1
1-3-2026
Appartement
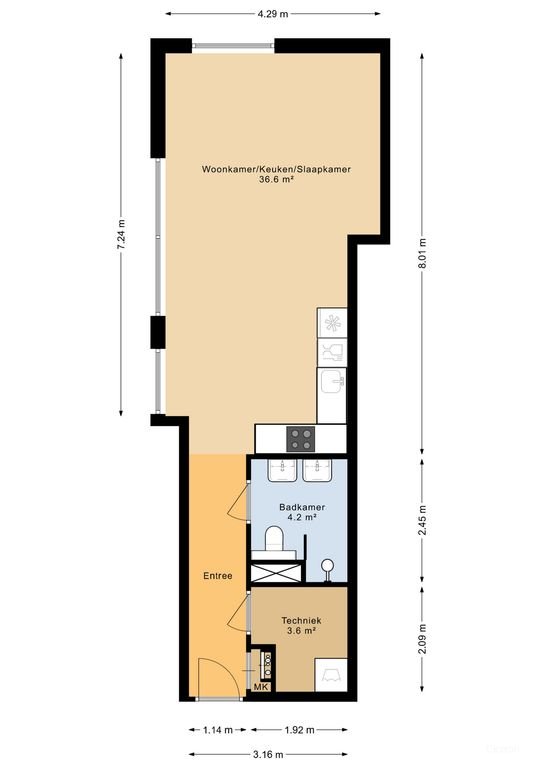
Haven 1-3, Het VierkantEnergiezuinige studio in hartje Lisse
€ 1.114
Aan de Haven 1-3 in Lisse ligt deze studio van 49 vierkante meter in het complex De Witte Zwaan. Omdat de woning beschikbaar is vanaf 1 september 2025…
1
49 m²
1-9-2025
Studio































