Toevoegen aan favorieten
Vrijstaand wonen met eigen aanlegsteiger
Nieuwemeerdijk 199, 1171 NL, Badhoevedorp Nieuwe Meer, Badhoevedorp, Noord-Holland, Nederland
Maandelijkse huur
Huurperiode
Maandelijks
Borg
€ 7.900
Beschikbaar vanaf
In overleg
Huurperiode
Maandelijks
Borg
€ 7.900
Beschikbaar vanaf
In overleg
Energieprestatie
Beschrijving
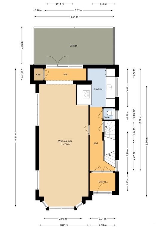
Aan de Nieuwemeerdijk 199 staat deze vrijstaande woning van 171 vierkante meter met een heel specifiek voordeel: een eigen aanlegsteiger aan de overkant van de straat. Je stapt hier dus letterlijk voor de deur je boot in om het Nieuwe Meer op te varen of door te stomen naar de Amsterdamse grachten. Het huis komt oorspronkelijk uit 1930, maar is recent gerenoveerd en verduurzaamd. Met dubbel glas, zonnepanelen en elektrische verwarming heb je hier energielabel B, wat comfortabel woont en scheelt in de stookkosten.
Binnen heb je de ruimte met vier kamers, waarvan drie slaapkamers, een badkamer en…
Details
Huurprijs
€ 3.950 / maand
Type
Vrijstaand Huis
Aantal kamers
4
Slaapkamers
3
Badkamers
1
Oppervlakte
171 m²
Meubilering
Gedeeltelijk gemeubileerd
Bouwjaar
1930
Locatie
Voorzieningen & apparatuur
Kenmerken
Tuin
Dubbel glas
Zonnepanelen










































































