Toevoegen aan favorieten
153 m² loft aan het IJ
Veemkade 400, Oostelijk Havengebied, Amsterdam, Noord-Holland, Nederland
Maandelijkse huur
Huurperiode
Maandelijks
Beschikbaar vanaf
1-5-2026
Huurperiode
Maandelijks
Beschikbaar vanaf
1-5-2026
Energieprestatie
Beschrijving
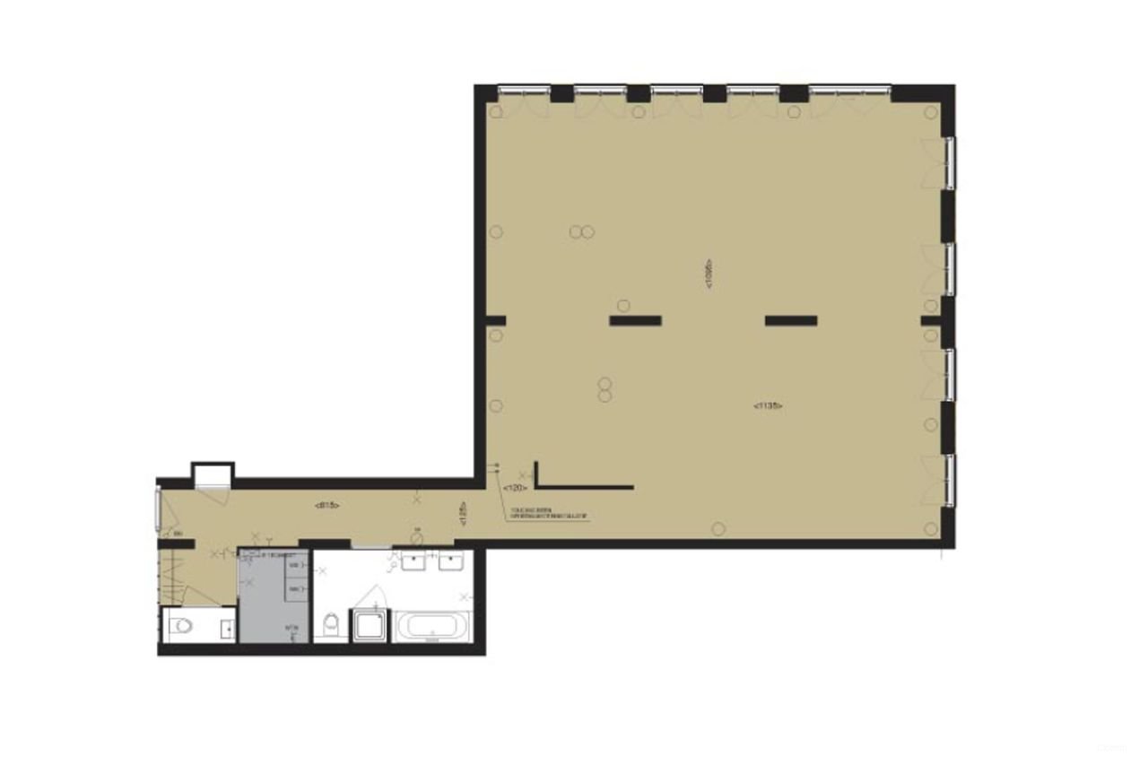
Deze loft van 153 m² ligt op de 2e verdieping aan de Veemkade in het Oostelijk Havengebied, met vrij uitzicht over het IJ. Door de hoekligging en plafonds van 2,65 meter voelt het open en licht, en de keuken met kookeiland is uitgerust met inbouwapparatuur.
Je hebt hier 1 slaapkamer, een terras, lift en centrale verwarming. Een parkeerplaats is verplicht en kost €215 per maand. Beschikbaar vanaf 01-05-2026.
Details
Huurprijs
€ 2.275 / maand
Type
Loft
Aantal kamers
2
Slaapkamers
1
Oppervlakte
153 m²
Bouwjaar
2005
Verdieping
2e verdieping
Locatie
Voorzieningen & apparatuur
Kenmerken
Lift
Parkeerplaats
Terras
Uitgeruste keuken



















