Toevoegen aan favorieten
Modern studentenappartement met balkon
Anna Blamansingel 207, 1102 SW, Bijlmer Centrum, Amsterdam, Noord-Holland, Nederland
Maandelijkse huur
Huurperiode
Maandelijks
Borg
€ 2.250
Beschikbaar vanaf
15-3-2026
Huurperiode
Maandelijks
Borg
€ 2.250
Beschikbaar vanaf
15-3-2026
Energieprestatie
Beschrijving
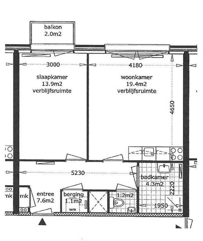
Op de vijfde verdieping van een complex met lift ligt dit volledig gemeubileerde appartement van 50 vierkante meter. Je kijkt hier uit over het water van de Anna Blamansingel in Amsterdam-Zuidoost. De woning is goed geïsoleerd met energielabel A+, wat fijn is voor je energierekening. Binnen heb je de beschikking over een woonkamer, een keuken, een slaapkamer en een badkamer met een apart toilet. Daarnaast is er een balkon waar je even een frisse neus kunt halen en een berging voor extra opslagruimte.
Het is belangrijk om te weten dat deze woning speciaal beschikbaar is voor internationale stude…
Details
Huurprijs
€ 1.300 / maand
Type
Appartement
Aantal kamers
2
Slaapkamers
1
Badkamers
1
Oppervlakte
50 m²
Meubilering
Gemeubileerd
Bouwjaar
2006
Verdieping
5e verdieping
Locatie
Voorzieningen & apparatuur
Kenmerken
Gemeubileerd
Balkon
Lift
Berging


















