Add to favorites
Modern two-bedroom apartment with A+++ energy label
Europaweg 105, 5707 CL, Helmond, North Brabant, Netherlands
Monthly Rent
Rental Period
Monthly
Deposit
€2,650
Available From
1/1/2026
Rental Period
Monthly
Deposit
€2,650
Available From
1/1/2026
Energy Performance
Description
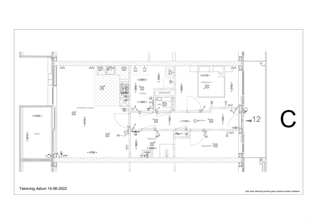
This 74-square-meter apartment is located in the Maison L'Europe complex on Europaweg in Helmond. The building was completed in 2024, meaning you will be moving into a brand-new and highly energy-efficient home. With an A+++ energy label, the property is excellently insulated, which you will notice immediately on your utility bills. You can easily reach the floor via the elevator from the central entrance.
Inside, you will find a living room with an open-plan kitchen equipped with all modern conveniences. It features an induction hob, dishwasher, refrigerator, freezer, and extractor hood, makin…
Details
Rent
€1,325 / month
Type
Apartment
Total Rooms
3
Bedrooms
2
Bathrooms
1
Size
74 m²
Furnishing
Unfurnished
Construction Year
2024
Location
Amenities & Appliances
Features
Elevator
Parking
Appliances
Fridge
Freezer
Dishwasher
Stove Top
Extractor Hood



