Add to favorites
4-bedroom family home in Heusdenhout
Heusdenhoutsestraat 352, Heusdenhout, Breda, North Brabant, Netherlands
Monthly Rent
Rental Period
Monthly
Available From
4/1/2026
Rental Period
Monthly
Available From
4/1/2026
Energy Performance
Description
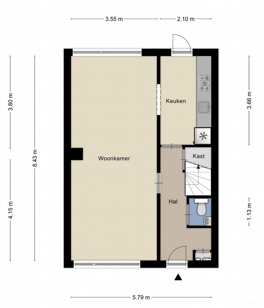
This 123-square-meter terraced house is located on Heusdenhoutsestraat, in the heart of a green area in Breda. You enter a home that, thanks to its energy label B, is also kind to your energy bills. With four bedrooms, there is plenty of space for a family, guests, or a quiet home office. The separate kitchen is equipped with everything you need, including a hob, extractor hood, dishwasher, oven, fridge, and freezer. Even the washing machine is already set up for you.
Behind the house, you will find a west-facing garden. This is ideal if you want to catch the afternoon and evening sun after a d…
Details
Rent
€2,100 / month
Type
Townhouse
Total Rooms
6
Bedrooms
4
Bathrooms
1
Size
123 m²
Furnishing
Partly Furnished
Construction Year
1970
Location
Amenities & Appliances
Features
Garden
Parking
Storage Room
Appliances
Stove Top
Extractor Hood
Dishwasher
Oven
Fridge
Freezer
Washing Machine

































