Toevoegen aan favorieten
Royale maisonnette van 110 m² in het centrum
Van Bijlandtplaats, Cool, Rotterdam, Zuid-Holland, Nederland
Maandelijkse huur
Huurperiode
Maandelijks
Beschikbaar vanaf
Per direct
Huurperiode
Maandelijks
Beschikbaar vanaf
Per direct
Beschrijving
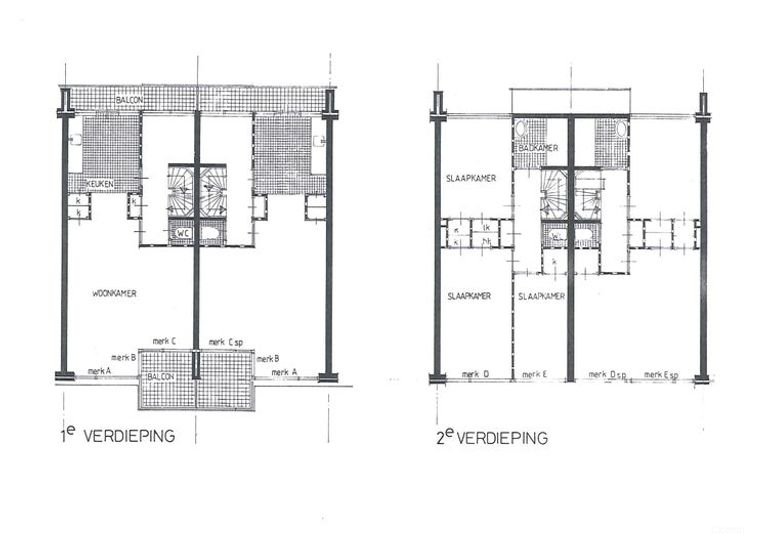
Deze maisonnette van 110 vierkante meter ligt direct aan de Van Bijlandtplaats in het centrum van Rotterdam. Het gebouw is ontworpen door de bekende architect Maaskant, wat zorgt voor een karakteristieke indeling die je niet vaak tegenkomt. Je hebt hier namelijk een eigen entree en de woning is verdeeld over twee verdiepingen. Hierdoor zijn het wonen en slapen duidelijk van elkaar gescheiden, wat veel rust geeft in huis. Met vier kamers, waarvan drie slaapkamers, heb je hier flink wat bewegingsruimte.
De locatie in de wijk Cool zorgt ervoor dat je alles bij de hand hebt. Zodra je de deur uitsta…
Details
Huurprijs
€ 2.195 / maand
Type
Appartement
Aantal kamers
4
Slaapkamers
3
Oppervlakte
110 m²
Meubilering
Gedeeltelijk gemeubileerd





















