Toevoegen aan favorieten
Ruime gezinswoning (122 m²) in Enka
Bosvijverlaan 16, Enka, Ede, Gelderland, Nederland
Maandelijkse huur
Huurperiode
Maandelijks
Borg
€ 1.530
Beschikbaar vanaf
31-3-2026
Huurperiode
Maandelijks
Borg
€ 1.530
Beschikbaar vanaf
31-3-2026
Energieprestatie
Beschrijving
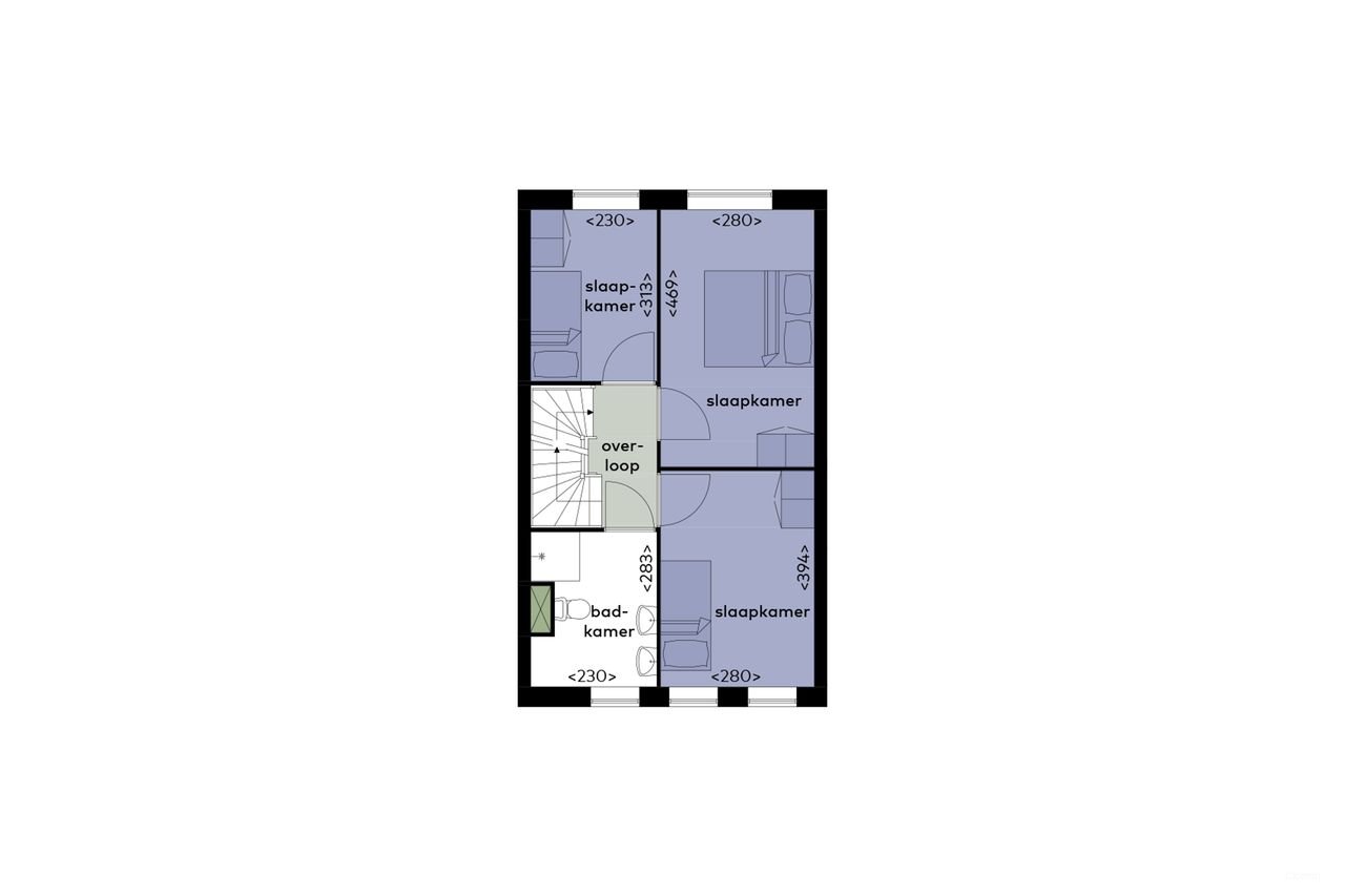
Op de Bosvijverlaan in de wijk Enka vind je deze eengezinswoning met 122 vierkante meter woonruimte. Het huis komt uit 2015 en heeft energielabel A, wat fijn is voor je energierekening en het comfort binnen. Je hebt hier de beschikking over vier kamers, waaronder drie slaapkamers, dus er is genoeg plek voor een gezin of een werkplek aan huis.
In de keuken vind je alles wat je nodig hebt om direct te kunnen koken, en ook de badkamer is al volledig ingericht. Achter het huis ligt een tuin waar je in de zomer lekker buiten zit. Voor je fietsen of losse spullen is er een aparte berging en parkeren …
Details
Huurprijs
€ 1.530 / maand
Type
Huis
Aantal kamers
4
Slaapkamers
3
Oppervlakte
122 m²
Bouwjaar
2015
Verdieping
Begane grond
Locatie
Voorzieningen & apparatuur
Kenmerken
Tuin
Berging
Parkeerplaats
Vergelijkbare beschikbare woningen

€ 1.230 / maand






