Toevoegen aan favorieten
Modern appartement bij het Amstelstation
Julianaplein, Frankendael, Amsterdam, Noord-Holland, Nederland
Maandelijkse huur
Huurperiode
Maandelijks
Borg
€ 1.785
Beschikbaar vanaf
2-4-2026
Huurperiode
Maandelijks
Borg
€ 1.785
Beschikbaar vanaf
2-4-2026
Energieprestatie
Beschrijving
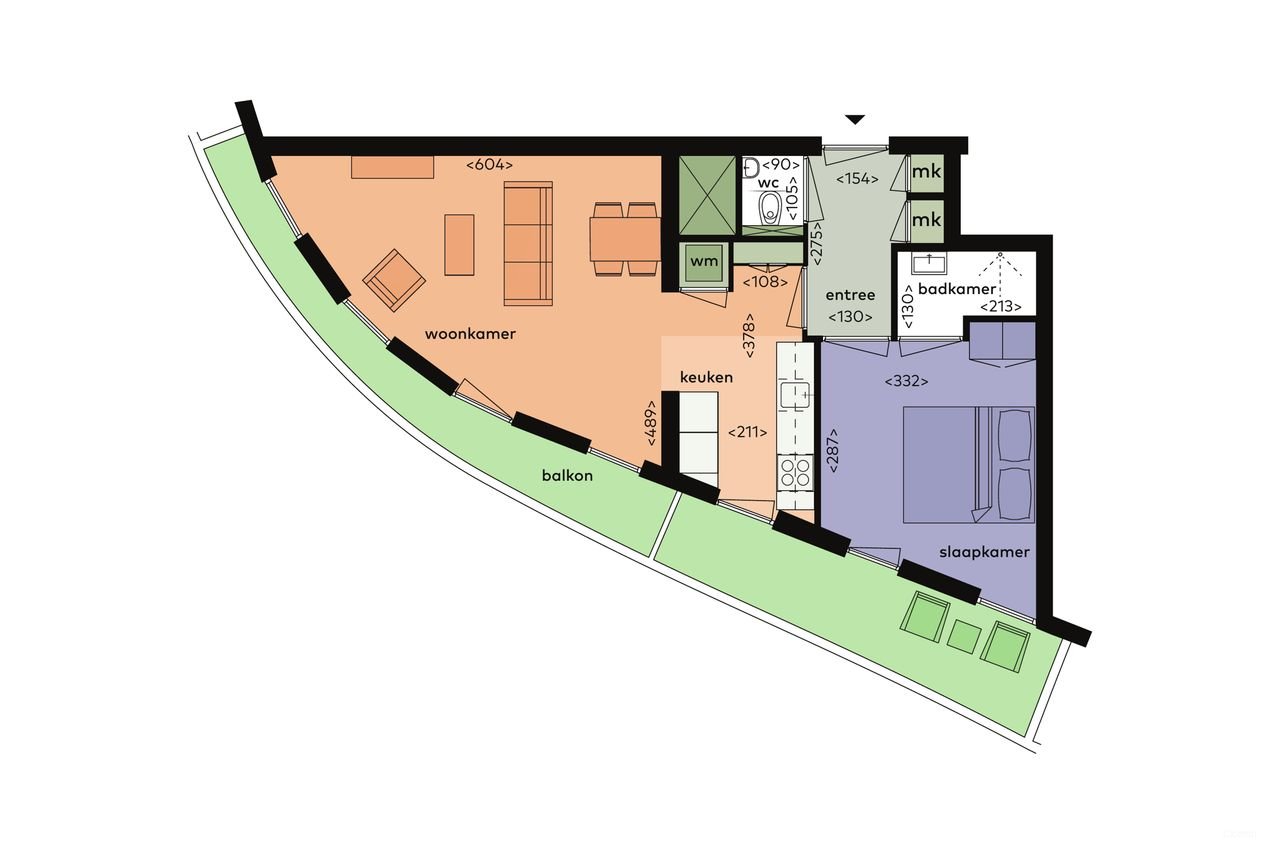
Aan het Julianaplein in Amsterdam vind je dit moderne tweekamerappartement van 48 vierkante meter. Het complex is gebouwd in 2018, wat betekent dat je geniet van goed geïsoleerd comfort met energielabel A. De woonkamer is licht dankzij de grote ramen en sluit aan op een half open keuken die al is voorzien van de nodige inbouwapparatuur. Door de hele woning ligt een onderhoudsvriendelijke PVC-vloer met comfortabele vloerverwarming, dus koude voeten zijn hier verleden tijd.
De slaapkamer heeft een slimme indeling met een badkamer en suite, compleet met inloopdouche en wastafelmeubel. Een fijn det…
Details
Huurprijs
€ 1.785 / maand
Type
Appartement
Aantal kamers
2
Slaapkamers
1
Oppervlakte
48 m²
Meubilering
Ongemeubileerd
Bouwjaar
2018
Verdieping
30e verdieping
Locatie
Voorzieningen & apparatuur
Kenmerken
Lift
Balkon
Parkeerplaats
















