Toevoegen aan favorieten
Lichte bovenwoning van 98m² met dakterras
Bijlmerdreef 917, 1103 TD, Bijlmer Oost, Amsterdam, Noord-Holland, Nederland
Maandelijkse huur
Huurperiode
Maandelijks
Borg
€ 4.500
Beschikbaar vanaf
Per direct
Huurperiode
Maandelijks
Borg
€ 4.500
Beschikbaar vanaf
Per direct
Energieprestatie
Beschrijving
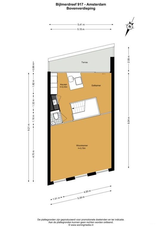
Dit appartement van 98 vierkante meter ligt direct aan de Bijlmerdreef, op steenworp afstand van winkelcentrum Amsterdamse Poort. Je komt binnen via je eigen entree op de begane grond en neemt de trap naar de tweede verdieping, waar het slaapgedeelte is ingericht. Hier vind je twee ruime slaapkamers en een derde, wat compactere kamer die goed dienst kan doen als werkkamer of kinderkamer. Op deze verdieping is ook een handige berging met de aansluiting voor je wasmachine, zodat die netjes uit het zicht staat. De badkamer is praktisch ingedeeld met een inloopdouche, toilet en wastafel.
Het woonge…
Details
Huurprijs
€ 2.250 / maand
Type
Loft
Aantal kamers
5
Slaapkamers
3
Badkamers
1
Oppervlakte
98 m²
Meubilering
Ongemeubileerd
Bouwjaar
1996
Verdieping
2e verdieping
Locatie
Voorzieningen & apparatuur
Kenmerken
Balkon
Berging
Fietsenstalling
Airconditioning
Apparatuur
Oven
Kookplaat

































