Huurwoningen in Rosmalen
Bekijk alle beschikbare woningen te huur.
Toont 6 van 6 woningen
€ 1.750
Aan de Lunersingel 95 in de wijk De Lanen vind je deze ruime eengezinswoning uit 2019. Met een woonoppervlakte van 131 vierkante meter en energielabel…
€ 1.630
Aan de Eendrachtswerf in Rosmalen vind je deze ruime tussenwoning van 133 vierkante meter. Het huis komt uit 2005 en heeft energielabel A+, wat je zek…
€ 1.700
Dit woonhuis van 115 vierkante meter staat in de wijk Broekland aan de Groote Wielenlaan. Het huis komt uit 2010 en heeft energielabel A, wat je zeker…
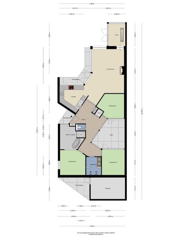
€ 1.450
Aan de Cadansstraat 44 in Rosmalen staat dit ruime woonhuis uit 2010. Het huis ligt in De Groote Wielen, een rustige wijk waar je prettig woont en all…
€ 422
In Rosmalen staat deze studio van circa 30 m² klaar voor nieuwe bewoners op basis van tijdelijke verhuur. Het is een compacte woning, maar met een sli…
€ 2.550
Per 1 februari 2026 staat deze vrijstaande bungalow aan de Franciscanenborch voor je klaar. Het gaat om een tijdelijke huurperiode van vijf maanden, p…

































































































