Huurwoningen in Hoogeveen
Bekijk alle beschikbare woningen te huur.
Toont 7 van 7 woningen
Modern appartement met dakterras in centrum
€ 957
Vanaf 1 maart 2026 is dit appartement van 60 vierkante meter beschikbaar aan de Jonkheer de Jongestraat in Hoogeveen. Je woont hier direct om de hoek …
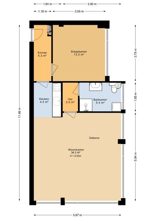
Ruime 3-kamerwoning met balkon in Hoogeveen
€ 380
Je vindt deze woning van circa 69 vierkante meter in Hoogeveen. Het gaat om een tijdelijke huurwoning, wat een slimme optie is als je op zoek bent naa…
Appartement aan de Alteveerstraat
€ 1.250
Dit appartement ligt aan de Alteveerstraat in de wijk Venesluis in Hoogeveen. Je huurt hier een woning voor €1.250 per maand. Hoewel de precieze detai…
Nieuw appartement met eigen parkeerplek
€ 1.350
Aan de Alteveerstraat in Hoogeveen vind je deze twee nieuwe appartementen op huisnummer 140a en 140b. Je beschikt hier over een ruime woonkamer en een…
Royale woning (92 m²) met tuin in Hoogeveen
€ 200
Deze woning van circa 92 vierkante meter ligt in Hoogeveen en is beschikbaar op basis van antikraak. Binnen vind je drie kamers, waaronder twee slaapk…
Fijn 3-kamer appartement in Hoogeveen
€ 953
Aan de Tichelwerkstraat 18 in Hoogeveen ligt dit appartement met een oppervlakte van 66 vierkante meter. Je krijgt hier de beschikking over in totaal …
Tijdelijk huren: Huis met tuin in Hoogeveen
€ 515
Deze woning van circa 96 vierkante meter in Hoogeveen is per direct beschikbaar voor tijdelijke verhuur. Met vier kamers heb je hier behoorlijk wat be…











































